T Laboratories
Tuesday, November 30, 2010
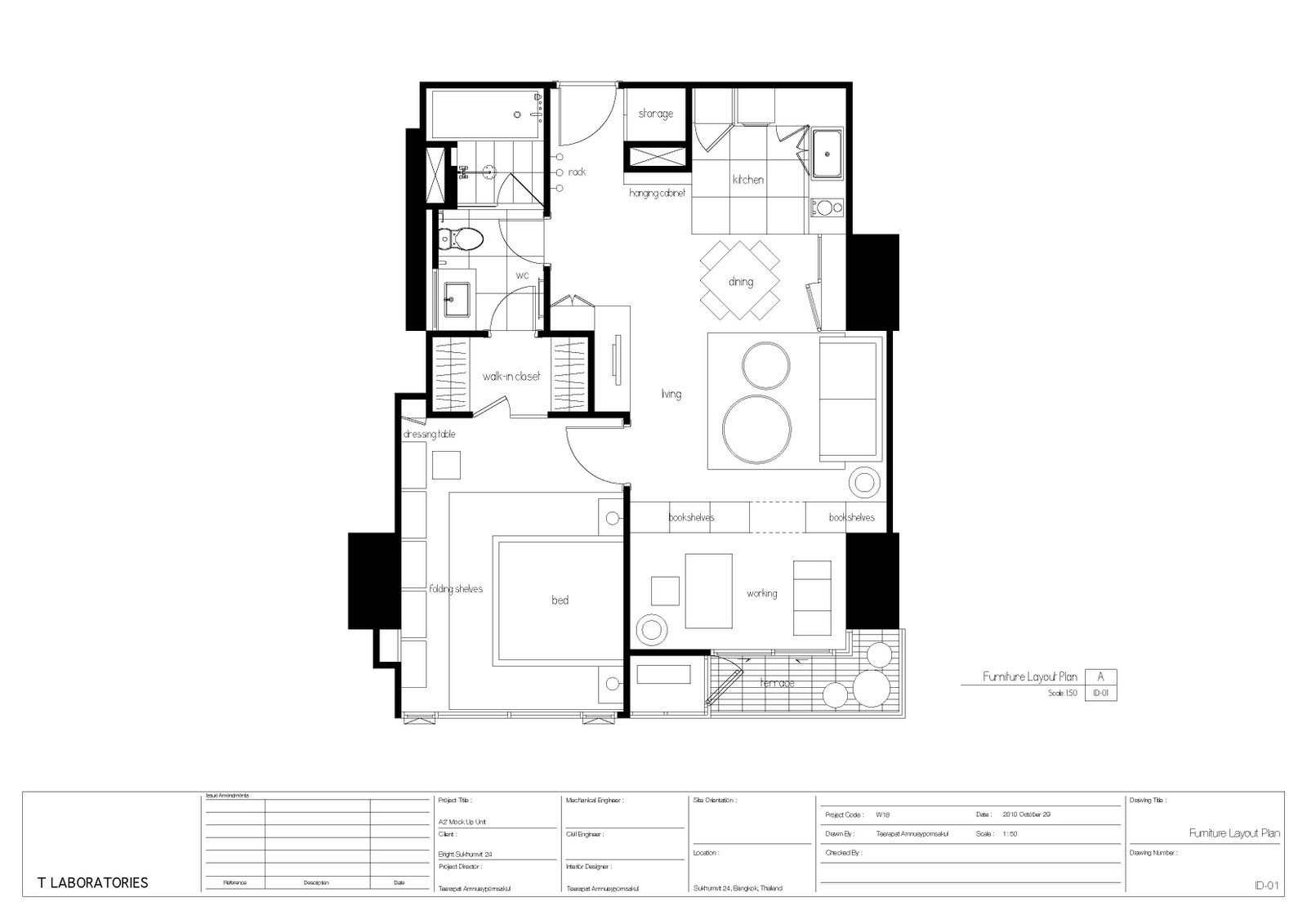
A2' Mock Up Unit - Update 2010 Nov 2
Project Title : A2' Mock Up Unit
Project Code : W18
Client : Bright Sukhumvit 24
Location : Sukhumvit 24 Bangkok Thailand
Area : 74 Sq.m.
Date : 2010 Nov 2
Status : Design Develop
Furniture Layout Plan 1LDK+W
Living + Dining + Working
Master Bedroom
T Laboratories
No comments:
Post a Comment
Newer Post
Older Post
Home
Subscribe to:
Post Comments (Atom)
No comments:
Post a Comment